ППР48
 

Технологическая карта на устройство фасада в Казани

Разрабатывается в виде отдельного документа либо входит в состав ППР
Область применения ТК - любые работы, связанные с улучшением конструктивных и визуально-эстетических свойств фасадов
технологическая карта на устройство фасадов

Технологическая карта на облицовку - документ, содержащий наиболее рациональные решения по отделке наружных поверхностей зданий материалами с высокими защитными и декоративными свойствами.

Перед разработкой ТК на облицовку рекомендуется ознакомиться с типовыми картами, в которых содержатся общие указания по производству облицовочных видов работ.

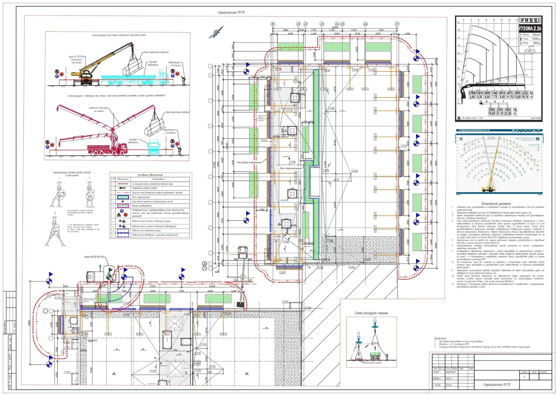
Технологическая карта на устройство фасада разрабатывается с учетом требований правил охраны труда на высоте

технологическая карта на монтаж вентилируемого фасада

Технологическая карта на вентилируемый фасад

Технологическая карта на устройство вентилируемого фасада состоит из нескольких основных разделов. Один из них - «Технология производства работ». Данный раздел служит для раскрытия операций, последовательно выполняемых в процессе возведения навесной фасадной системы (НФС). Последовательность установки НФС, в общем виде, выглядит следующим образом: подготовительные мероприятия, разметка и бурение отверстий под крепежные элементы, установка кронштейнов, монтаж теплоизоляции, устройство ветро-гидрозащитной мембраны, монтаж металлического каркаса системы, фиксация облицовочного материала, закрепление элементов примыкания к конструкциям здания. Рекомендации по возведению НФС содержатся в СТО НОСТРОЙ 2.14.67-2012. Перед изготовлением ТК данного типа рекомендуется изучить типовые проекты

технологическая карта на монтаж витражей

Технологическая карта на монтаж витражей

Технологическая карта на монтаж витражей позволяет организовать работы наиболее эффективным и безопасным образом. Этапы монтажа крупногабаритных светопрозрачных конструкций зависят от их конструктивных особенностей. 

В большинстве случаев принимают следующую технологическую последовательность:
 
- подготовительные работы; 
- разметка фасада, крепление закладных деталей; 
- сборка, выверка и закрепление элементов каркаса к несущим 
- конструкциям здания; 
- установка, выверка и фиксация светопрозрачных конструкций заполнений.

Для создания витражей могут потребоваться такие виды техники и приспособлений, как кран манипулятор, автогидроподъемник, вакуумная присоска. Перед составлением ТК, рекомендуется изучить документы, в которых содержатся решения по сооружению алюминиевых светопрозрачных конструкций

Сколько стоит разработка технологической карты на облицовку фасада?

Входит в состав общего ППР

Формат PDF
от 17.000р.
Изготавливается в составе проекта производства работ, содержит все необходимые разделы, графики и чертежи. Имеет взаимосвязь всеми технологическими картами, входящими в состав общего ППР.

Самостоятельный проект

Формат PDF
от 22.000р.
Выполняется в виде самостоятельного документа, содержит все необходимые разделы, графики и чертежи. Позволяет оптимизировать строительные процессы и достигнуть высоких показателей эффективности труда.

Отзывы наших клиентов

ПОЛУЧИТЕ
КОММЕРЧЕСКОЕ
ПРЕДЛОЖЕНИЕ

ГАРАНТИРУЕМ
100% СОГЛАСОВАНИЕ

СРОК ИЗГОТОВЛЕНИЯ
ОТ 2-х ДНЕЙ

ПРЕДЛАГАЕМ
ИНДИВИДУАЛЬНЫЙ ПОДХОД

  • Вам нужны качественные услуги, для получения согласования со 100% гарантией?
  • Требуется выполнить пояснительные записки и чертежи не только для проверок, но и для использования на объекте?
  • Необходимо сориентироваться по стоимости разработки строительной документации?

Ответьте на несколько вопросов по вашему проекту и получите коммерческое предложение, оптимизированное под ваш случай!

Также наша компания занимается созданием технологических карт (ТК) на погрузо-разгрузочные работы