Разработка ППР для объектов компании «Роснефть»
Мы — крупнейшая компания по разработке ППР и технологической документации в строительной отрасли.
Все наши проекты проходят строгий контроль качества и гарантированно получают полное согласование.
Удовлетворенность наших клиентов является высшим приоритетом, ведь наша работа гарантирует успех каждого строительного проекта.
Когда требуется разработка проектов производства работ для объектов Роснефти?
Разработка ППР данного типа необходима всегда при проведении работ по строительству или реконструкции на территории особо-опасных промышленных объектов в нефтегазовой сфере. Все работы должны производиться в строгом соответствии действующим на территории РФ нормативным актам и регламентам крупных отраслевых компаний.
В нашей деятельности чаще всего мы занимаемся разработкой проектов следующих направлений:
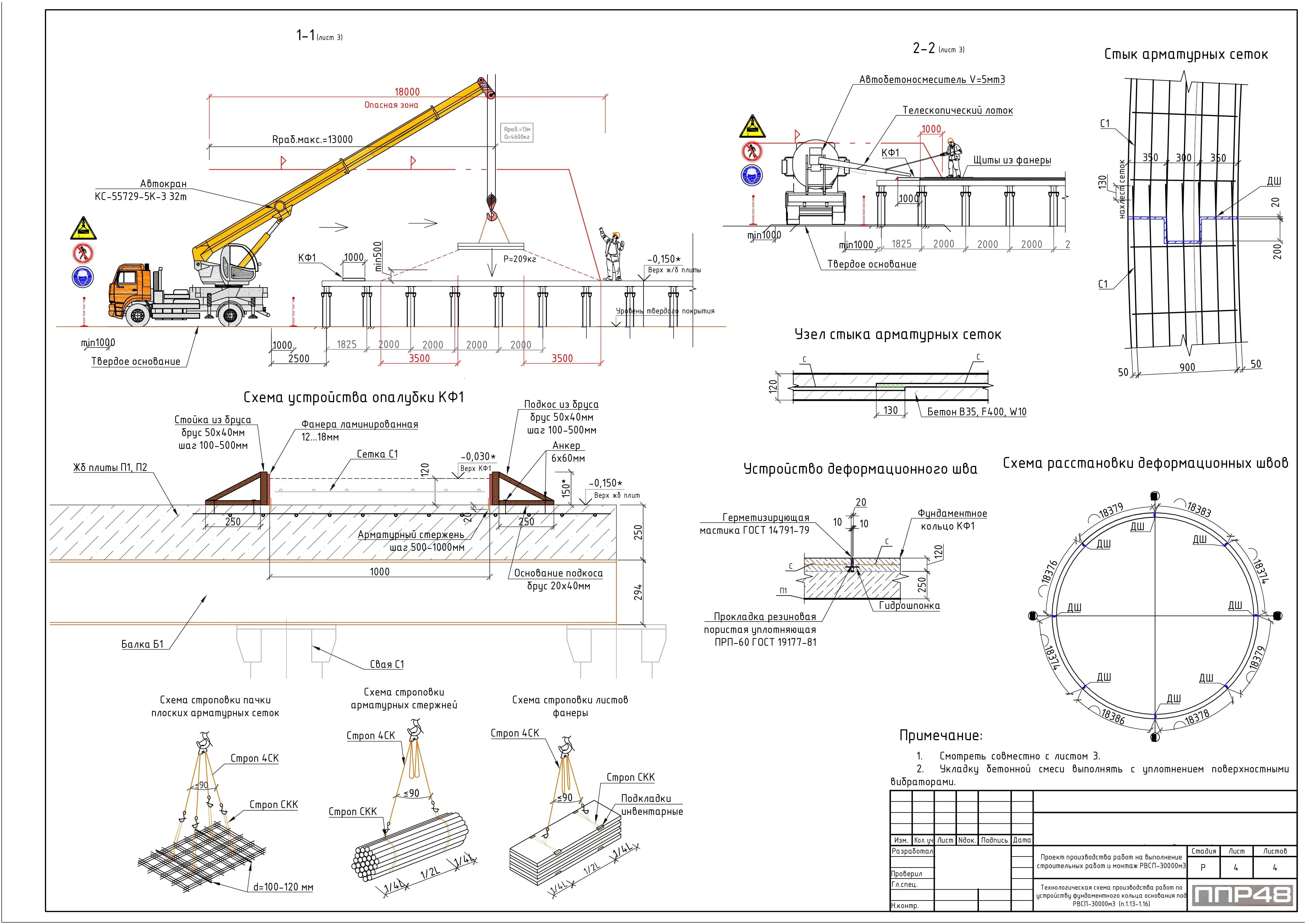
- ППР и ППР ПС на строительство резервуаров;
- ППР на строительство вахтового городка;
- ППР для высотных работ на буровых установках;
- ППР на строительство нефтепроводов;
- ППР для общестроительных работ при сооружении НПЗ.
Наша компания обладает обширным опытом в создании таких проектов, хорошо знакома с процессами многоуровневой проверки документации и объективно оценивает затраты времени на доработку замечаний со стороны всех структур и подразделений, участвующих в согласовании и утверждении проектов.
Почему стоит доверить разработку ППР именно нам?
Одним из главных преимуществ нашей компании является богатый опыт в создании инженерной документации для объектов Роснефти. За 8 лет работы мы успешно подготовили свыше 100 уникальных проектов различной сложности и направленности.
При разработке мы всегда учитываем специфические особенности выполнения работ на конкретных объектах, а также соблюдаем требования отраслевых стандартов ведущих государственных и частных организаций. Благодаря этому, мы готовы качественно и в установленный срок справиться с задачами любого уровня сложности.
Наша цель – предоставлять клиентам услуги высокого уровня: от профессиональных инженерных решений до персонального подхода, включая сопровождение проекта менеджером и техническую поддержку.
Сколько стоит ППР?
Создание ППР для объектов компании Роснефть – задача достаточно сложная. В процессе разработки необходимо учитывать не только общие нормативные акты, но и внутренние регламенты, инструкции и требования. Наши специалисты отлично ориентируются в особенностях многоступенчатой проверки, через которую проходит документация у различных структур и подразделений заказчика.
Это позволяет, во-первых, уже на этапе разработки проекта учитывать все возможные замечания, которые могли бы возникнуть, если бы эти детали не были учтены изначально. Во-вторых, мы оперативно и профессионально работаем с корректировкой замечаний, поступающих от заказчика и его служб.
Все эти аспекты мы учитываем при составлении коммерческого предложения на разработку ППР данного типа. Стоимость таких проектов не является низкой, однако она полностью оправдана включением в расчет трудозатрат, связанных как с самой разработкой, так и с устранением замечаний.




















































