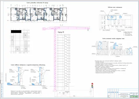
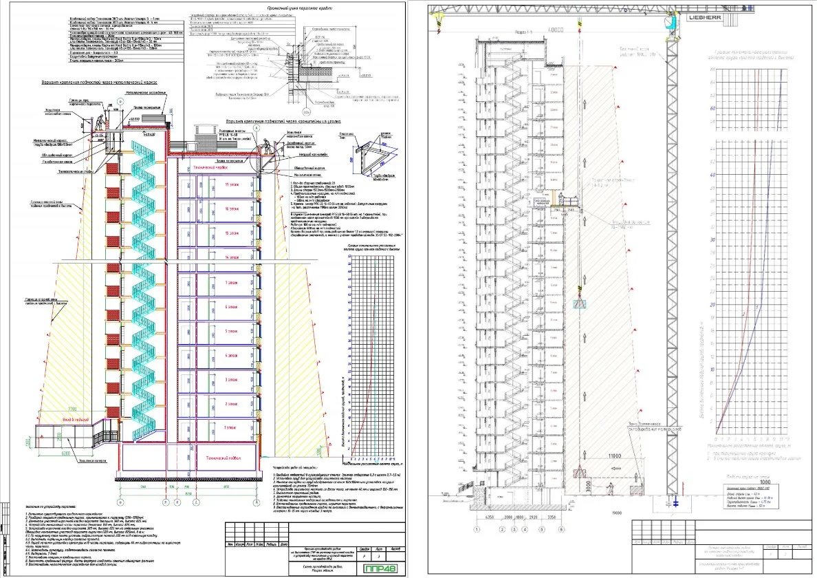
Технологическая карта на каменную кладку конструкций позволяет организовать работы максимально эффективным образом, а также достигнуть наилучших технико-экономических показателей.
В данной области, ТК классифицируются по таким параметрам, как вид кладки, ее конструктивные особенности, назначение и материал используемый для ее устройства.
Технологическую карту на кладку стен и прочих конструкций из силикатных изделий рекомендуется разрабатывать с учетом положений СТО НОСТРОЙ 2.9.157-2014 (посмотреть).
















































