От 35 тысяч. От 3 дней. Бесплатное устранение замечаний. 100% гарантия согласования.
ППР на монтаж мостового крана от ППР48 в Казани
Данный ППР входит в линейку проектов по монтажу кранов
Исходные данные необходимые для разработки ППР на монтаж мостового крана

Для подготовки ППР на монтаж мостового крана нам понадобятся следующие исходные данные:
-
Проектная и рабочая документация: чертежи здания, конструкций, путей для движения крана с привязкой к местности, а также схемы планируемой установки оборудования.
-
Проект организации строительства (ПОС) или строительный генеральный план: с учетом размещения монтажных механизмов и проведения транспорта.
-
Смета или ведомость объемов работ: либо дефектная ведомость для определения основных этапов и трудоёмкости работ.
-
Техническое задание на разработку ППР: если есть особые требования от заказчика или особенности на объекте.
-
Список техники и инструментов, которые предполагается использовать: например, подъемная техника, монтажные приспособления, грузозахватные устройства.
-
План-график работ или предполагаемые сроки начала и окончания монтажа: для планирования последовательности выполнения монтажных операций.
-
Фото или видео площадки и места будущего монтажа: при необходимости, для уточнения условий работы и возможных ограничений.
-
Регламенты компании, технические условия и дополнительные документы: стандарты по безопасности, технические требования к материалам, внутренние инструкции или пожелания заказчика.
Чем подробнее будут предоставлены эти данные, тем легче и быстрее специалисты подготовят проект производства работ.
Особенности разработки ППР на монтаж мостовых кранов
Компания ППР 48 накопила богатый опыт в подготовке ППР на монтаж мостовых кранов и выделяет ряд важных особенностей, которые необходимо учитывать в процессе разработки:
-
Отсутствие или недостаточная детализация конструкторской информации.
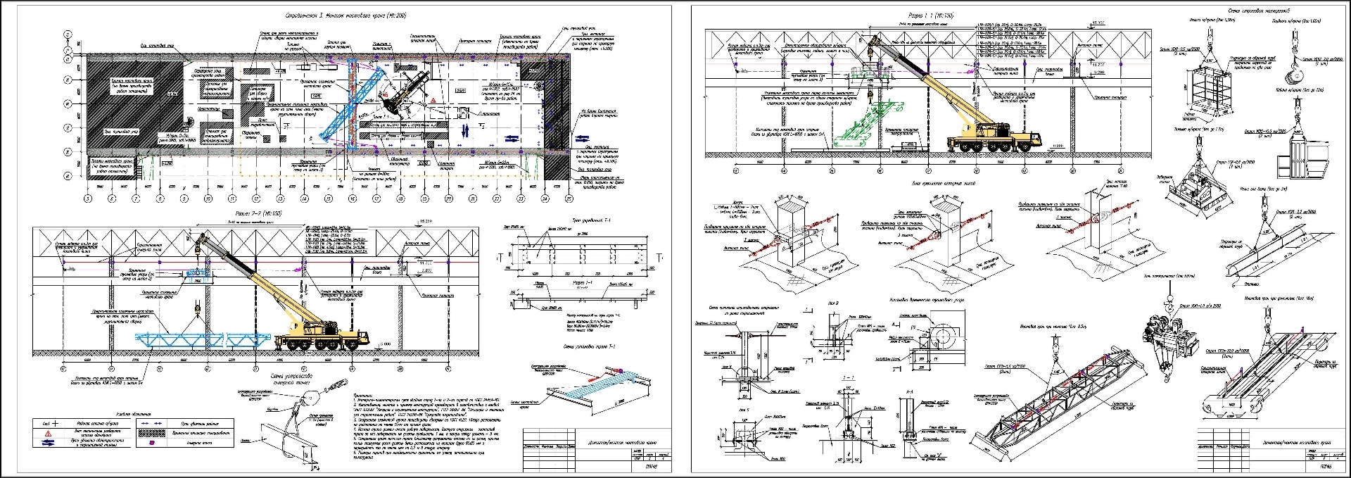
Как правило, в паспортах на мостовые краны редко содержатся полноценные и актуальные сведения о конструкции оборудования, зачастую отсутствуют необходимые для монтажа чертежи или схемы.
-
Необходимость создания редактируемых чертежей.
Даже если чертежи предоставляются, они чаще всего представлены в не редактируемых форматах. Поэтому нашей стандартной практикой является оцифровка бумажных или сканированных изображений в формат DWG (AutoCAD) для дальнейшей работы.
-
Учет грузоподъемных характеристик автокранов.
При составлении ППР всегда тщательно анализируем возможности автомобильных кранов, которые будут использоваться при монтаже мостовых кранов, чтобы учесть все технические ограничения и обеспечить безопасность работ.
-
Внимание к условиям промышленных объектов.
Особое значение имеет учет стеснённых условий монтажных работ, характерных для промышленных предприятий, а также согласование технологических процессов и графиков с основным производством.
Наш опыт позволяет эффективно решать задачи по оцифровке чертежей, оценке возможностей монтажной техники и организации работ даже в сложных производственных условиях.
Почему стоит заказывать ППР на монтаж кран-балки в компании ППР 48
Компания ППР 48 обладает значительным опытом в разработке ППР на монтаж кран-балок, что позволяет учитывать все особенности промышленных и гражданских объектов. При отсутствии проектной документации в редактируемом формате специалисты компании оперативно выполняют оцифровку и адаптацию чертежей в AutoCAD (DWG), что сокращает сроки подготовки и снижает вероятность возникновения ошибок. Все инженерные решения разрабатываются комплексно: тщательно анализируются особенности площадки, условия монтажа, возможности используемой техники, а также логистические и технологические ограничения.
Особое внимание уделяется учету действующих производственных процессов, поэтому ППР разрабатываются с учетом стеснённых условий, внутренних графиков и ограничений на объекте. При подготовке проектов прорабатываются меры по обеспечению безопасности и охраны труда, что позволяет минимизировать риски при проведении работ. Каждый клиент получает индивидуальный подход и профессиональное сопровождение на всех этапах согласования и реализации ППР, а специалисты компании всегда готовы предложить оптимальные и практичные решения по организации монтажных работ.




































