Прозрачный договор. Лицензия СРО. Гарантия соблюдения сроков. Внутренний контроль качества выпускаемой документации. Работаем в ЭДО.
Разработка ППР на монтаж витражей в Казани
От 25 тысяч, от 2х дней. 100% гарантия согласования в надзорных органах.
Одним из видов проектов, которые мы разрабатываем является ППР на монтаж витражей, в том числе алюминиевых. Данный проект входит в линейку проектов на для выполнения фасадных работ.
В каких случаях необходимо разрабатывать проект производства работ на монтаж витражей
Согласно СП 48.13330.2019 документ необходимо разрабатывать в следующих случаях:
1. В полном объеме ППР обязателен, если:

-
Работы ведутся на городской территории
(например, монтаж витражей в любом городе). -
Работы выполняются на территории действующего предприятия
(например, витражи монтируются при реконструкции здания завода, больницы, учреждения и т.п.). -
Строительство ведется в сложных природных и геологических условиях или на технически особо сложном объекте
— по требованию органа, выдающего разрешение на строительство или на выполнение работ (например: высотные здания, нестандартные или крупногабаритные витражи, сложные конструкции, наличие опасных факторов и пр.).
2. В остальных случаях:
- ППР на монтаж витражей может разрабатываться в неполном объеме
— по решению организации, осуществляющей строительство (то есть: если работы не попадают под описанные выше категории, объем и необходимость ППР определяет подрядчик или застройщик).
ППР на монтаж и демонтаж алюминиевых витражей
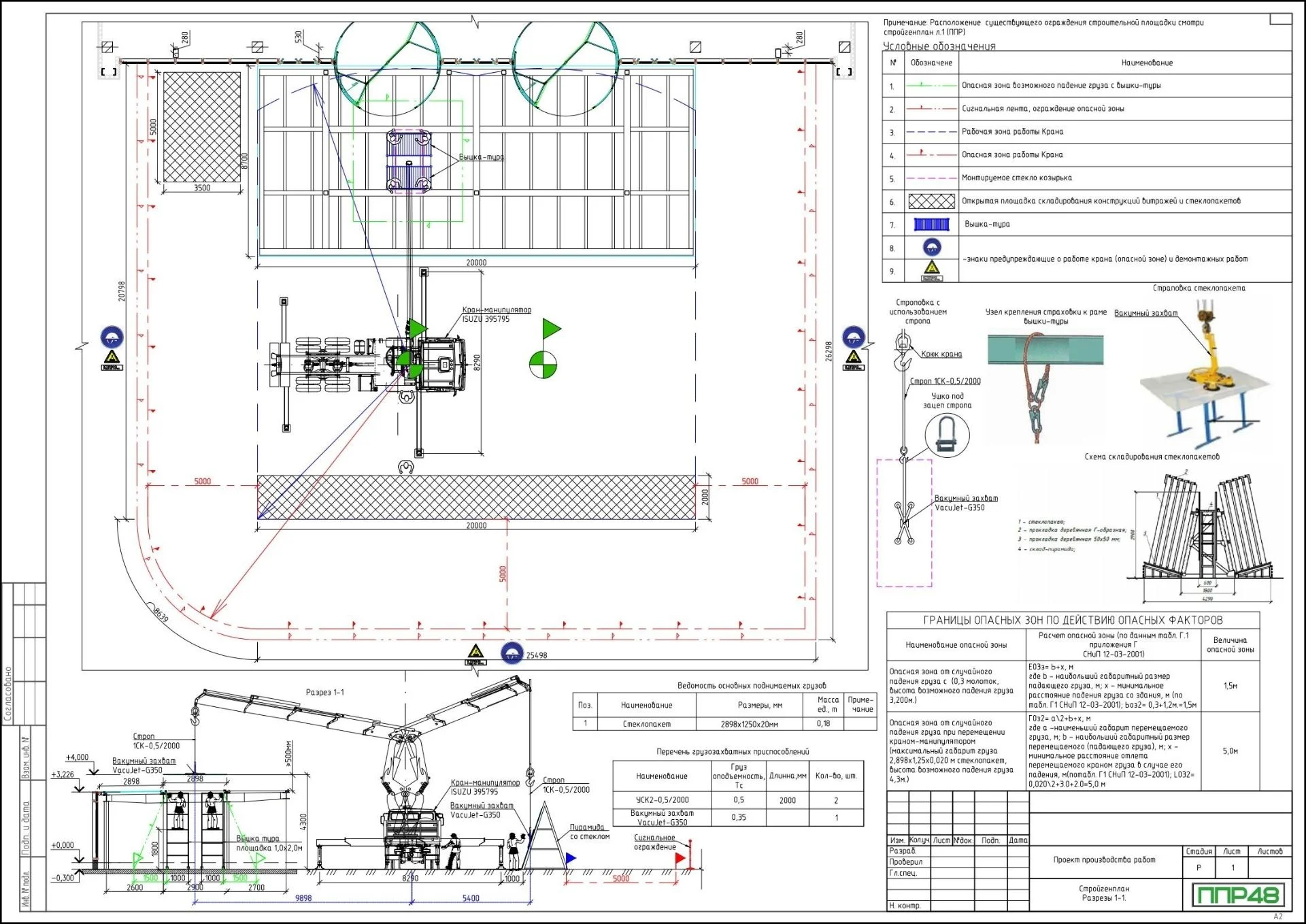
По роду своей деятельности специалистам нашей компании приходится часто сталкиваться с разработкой ППР на монтаж витражных конструкций с каркасами выполненными из различных материалов - от деревянных до ПВХ (пластик). Но наибольшее распространение получили каркасы из алюминия. Наиважнейшие отличительные особенности создания такого проекта лежат исходных данных на основе которого он разрабатывается. Как правило это раздел РД - АР или даже КМД. АР помогает понять нашим инженерам общую характеристику фасада здания посмотреть план кровли, чтобы определить конфигурацию размещения средств подмащивания (строительные леса, фасадные подъемники и т.д.). Таким образом АР позволяет создать нам первую часть документа, посвященную монтажу вспомогательных средств для монтажа витражных конструкций. Проект КМД дает нам больше представления для создания второй части документа - технологическая карта на монтаж витражей (каркас, заполнение и т.д.). В КМД как правило содержится точная спецификация и узлы монтируемых элементов. Благодаря этому мы можем более точно определить методику выполнения технологических операций и предоставить развернуое и практичное описание ведения данных работ на вашем объекте. В графической части мы покажем план и разрезы с указанием расстановки средств подмащивания, направлений ведения работ, а также узлы страховки рабочих , занимающихся выполнением СМР на высоте.
Почему за разработкой ППР на монтаж витражей стоит обратиться именно в ППР 48
Заказывая ППР для монтажа витражей у ППР 48, вы получаете не просто документ, а комплексное решение для вашего проекта.
Наши преимущества:

-
Узкая специализация
Разрабатываем ППР именно для монтажа витражей любых типов — учитываем особенности стеклянных конструкций, монтаж на высоте, нюансы такелажа.
-
Глубокое знание нормативов
Все проекты соответствуют СП 48.13330.2019, ГОСТ Р 12.3.047-2021 и актуальным стандартам по безопасности и охране труда.
-
Индивидуальный подход
Анализируем условия объекта, разрабатываем схемы и техкарты, предлагаем оптимальные решения по каждому проекту.
-
Опыт и сроки
Выполнили десятки ППР для бизнес-центров, магазинов, частных домов. Срок разработки — от 3 до 7 дней при наличии исходных данных.
-
Поддержка
Оказываем консультации, авторское сопровождение, быстро вносим правки по замечаниям.
-
Честная стоимость
Предлагаем индивидуальные расчёты, бесплатное коммерческое предложение, никаких скрытых расходов.
-
Гарантия согласования
Более 90% наших ППР проходят с первого раза. Есть успешные кейсы для самых сложных объектов.
ППР 48 — это надёжность и спокойствие при монтаже витражей для заказчиков и подрядчиков.
Обращайтесь — подготовим ППР, который реально работает!









































