ППР48
 

ППР на монтаж строительных конструкций

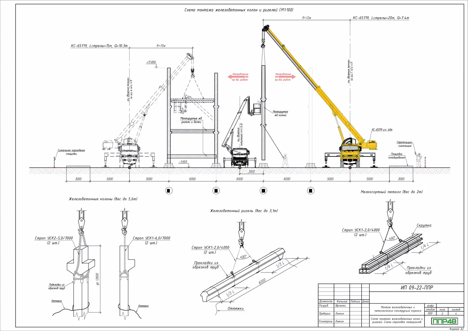
Проект производства работ на монтаж состоит из технологических карт
Документ тесно связан с проектом производства работ кранами. Проекты пересекаются в случаях, когда возникает необходимость в использовании грузоподъемной техники
 
От 25 тысяч. От 2х дней работы. Бесплатное устранение замечаний. 100% гарантия согласования проекта.
проект производства работ (ППР) на монтаж строительных конструкций

Виды ППР на монтаж строительных конструкций

Наша компания оказывает комплекс услуг на монтаж строительных конструкций любых видов и типов. Список наиболее часто встречающихся в нашей практике типы проектов на монтаж конструкций:

В нашей работе мы всегда учитываем особые технические условия заказчика, например стесненные условия или работы в охранной зоне инженерных сетей и.т. Благодаря этому наши проекты получаются адаптированными под требования всех надзорных органов и эксплуатирующих служб, что в свою очередь благоприятно влияет на процесс согласования документации.

Сколько стоит разработка ППР на комплекс работ по монтажу сборных конструкций?

ППР на ж.б. конструкции

Формат PDF
От 25.000р.
Состоит из пояснительной записки, календарного графика и строительного генерального плана. Разрабатывается в сжатые сроки.

ППР на КМ конструкции

Формат PDF
От 35.000р.
Состоит из пояснительной записки, календарного графика, строительного генерального плана, технологических схем движения техники.

Наши проекты

Отзывы наших клиентов

ПОЛУЧИТЕ
КОММЕРЧЕСКОЕ
ПРЕДЛОЖЕНИЕ

ГАРАНТИРУЕМ
100% СОГЛАСОВАНИЕ

СРОК ИЗГОТОВЛЕНИЯ
ОТ 2-х ДНЕЙ

ПРЕДЛАГАЕМ
ИНДИВИДУАЛЬНЫЙ ПОДХОД

  • Вам нужны качественные услуги, для получения согласования со 100% гарантией?
  • Требуется выполнить пояснительные записки и чертежи не только для проверок, но и для использования на объекте?
  • Необходимо сориентироваться по стоимости разработки строительной документации?

Ответьте на несколько вопросов по вашему проекту и получите коммерческое предложение, оптимизированное под ваш случай!

Также наша компания занимается созданием технологических карт (ТК) на погрузо-разгрузочные работы