ППР48

ППР на монтаж металлоконструкций

От 25 тысяч рублей. Бесплатное устранение замечаний. 100% гарантия принятия проекта.
Информацию о проекте на демонтаж КМ можно посмотреть здесь

ППР на металлоконструкции, в том числе на монтаж крана – детальная инструкция, используемая в процессе производства монтажных работ в отношении стальных или алюминиевых конструкций. Разрабатывается на основе технического задания заказчика и предоставленной рабочей документации. Имеет взаимосвязь с ППР на монтаж сэндвич-панелей.

ППР монтаж металлического каркаса здания

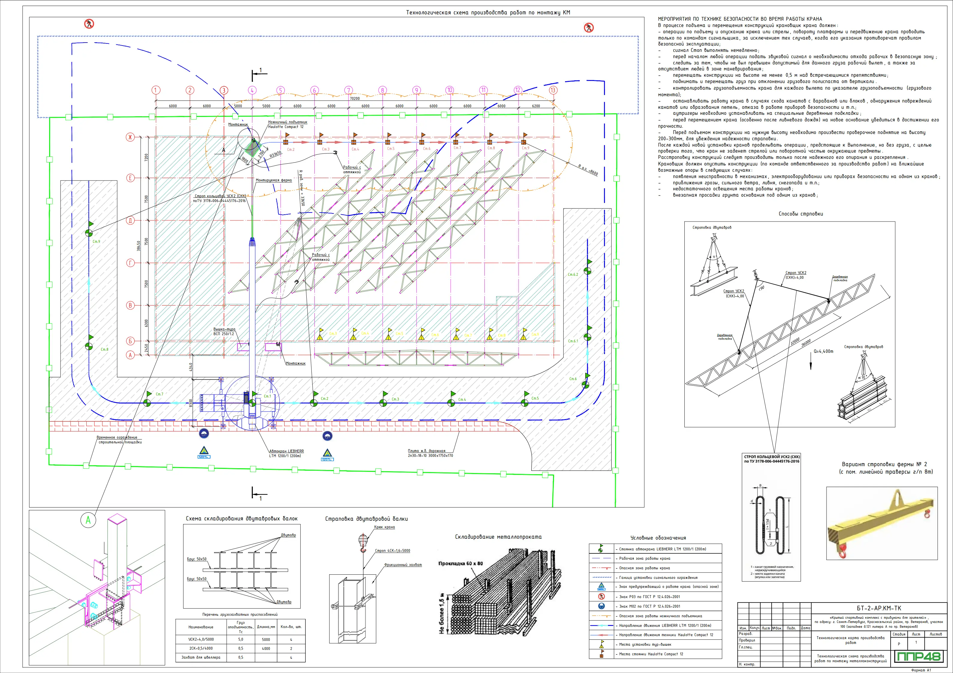
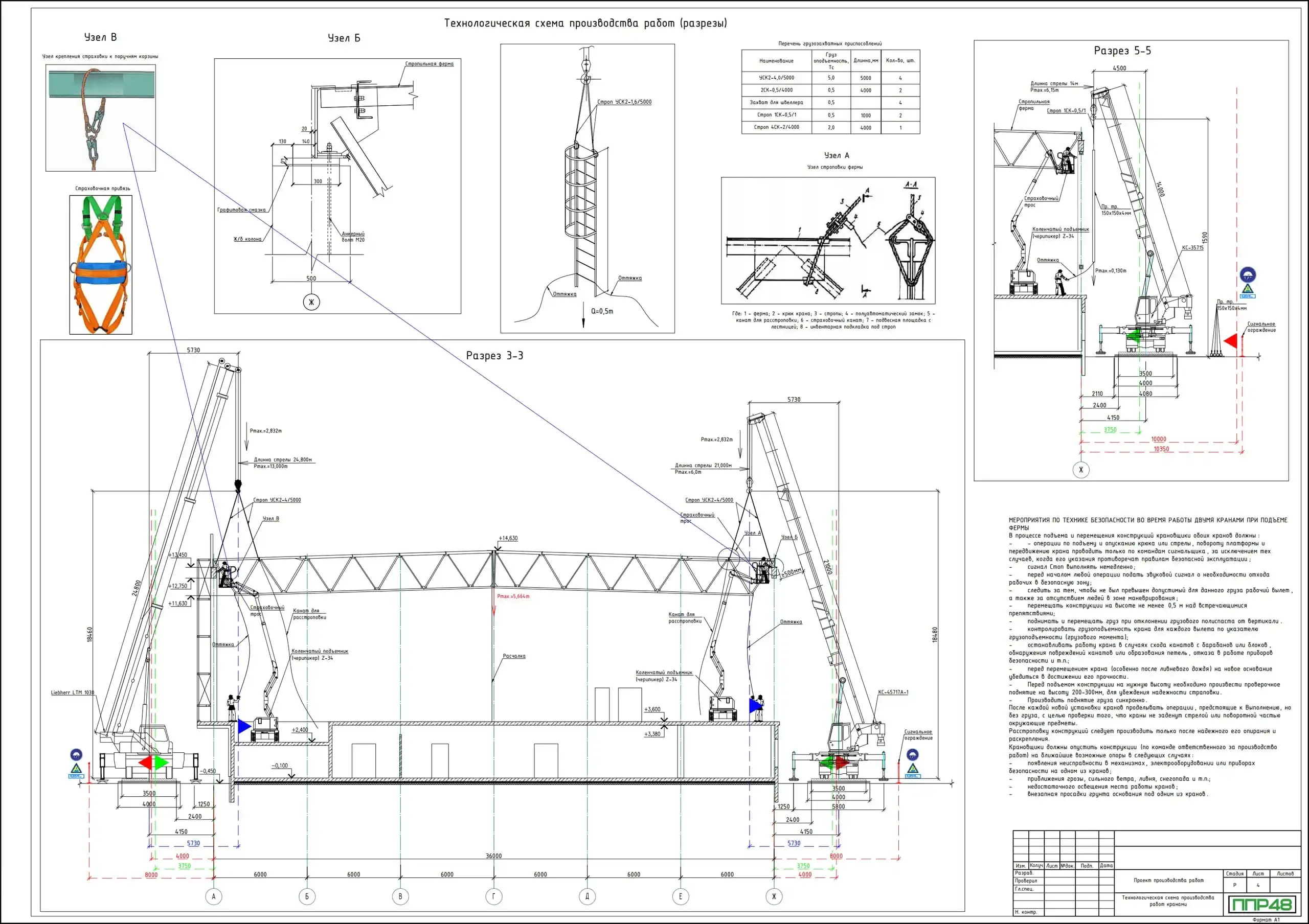
Разработку проекта на монтаж металлоконструкций выполняют с учетом требований СП 16.13330.  В документ включают схему последовательности сборки металлического каркаса. Каркас разбивают на отдельные элементы, которые затем нумеруют. После чего определяют порядок сборки. Закончив укрупнительную сборку элементов КМ, строители приступают непосредственно к их монтажу. Секции КМ поднимают и перемещают с помощью крана к местам проектной установки. Затем монтажники выверяют конструкции, центрируют оси фасонок и закладных деталей, устраивают монтажные соединения. Данный документ должен приносить практическую пользу, помогать сотрудникам принимать решения, которые позволят оптимизировать строительные процессы и сэкономить денежные средства подрядной организации. Подготовительные мероприятия, основные производственные процессы, контроль качества и надзор за строительством ведутся с учетом требований СП 48.13330

Область применения

проект производства работ (ППР) на монтаж металлоконструкций

Проект производства работ на монтаж металлоконструкций - весьма важный документ в строительстве.

Разрабатывается для установления технологической последовательности монтажа таких конструктивных элементов как:

  • эстакады
  • фермы;
  • погоны;
  • связи;
  • фахверковые конструкции;
  • колонны;
  • элементы покрытий

Для чего нужен ППР на металлоконструкции?

Проект производства работ на монтаж металлоконструкций должен быть выполнен в обязательном порядке перед началом ремонта, строительства или реконструкции сооружений, изготовленных целиком или частично из металлических изделий всевозможных видов профиля или сортаментного проката (ригели, связи, балки, фермы, прогоны и т.д.). Документ необходим для организации процесса строительства, осуществления контроля качества, обеспечения производственной безопасности. Специалисты нашей команды способны взять на себя проектирование любой сложности. Разработка ППР реализуется опытными инженерами, аттестованными в области промышленной безопасности. У наших специалистов имеются все необходимые удостоверения и сертификаты на право изготовления документации.

ВАЖНО

Осуществлять СМР без данного документа строго запрещено. Предусмотрено административное наказание.

Особенности 
ППР на монтаж металлических конструкций

Для изготовления документа необходимы следующие данные: 

  • техническое задание, выдающееся подрядчиком, на выпуск документации, обеспечивающей технологическое сопровождение возводимого или реконструируемого объекта;
  • исходные чертежи КМ или КМД (также можно заказать у нас);
  • директивные сроки выполнения комплекса СМР
  • информация о применяемых материалах, конструкциях, строительной механизированной технике, рабочей силе;
  • проект организации строительства.

Чем полезен данный документ?

Позволяет оптимизировать сроки и трудозатраты при возведении объектов из металлоконструкций. При правильном подборе организационно-технологических решений, можно определить наиболее выгодные условия, по которым будет производиться поставка материалов к строительному участку и осуществляться сам монтаж.

Документ включает:

  • этапы работ и взаимодействия грузоподъёмных механизмов, которые планируется задействовать в монтажных операциях;
  • места расположения и направления перемещения техники на площадке;
  • анализ, прогнозирование и устранение возможных рисков при проведении СМР;
  • перечень требуемых ресурсов и оборудования при осуществлении строительного производства с применением грузоподъёмных машин.

Наши проекты

Отзывы наших клиентов

ПОЛУЧИТЕ
КОММЕРЧЕСКОЕ
ПРЕДЛОЖЕНИЕ

ГАРАНТИРУЕМ
100% СОГЛАСОВАНИЕ

СРОК ИЗГОТОВЛЕНИЯ
ОТ 2-х ДНЕЙ

ПРЕДЛАГАЕМ
ИНДИВИДУАЛЬНЫЙ ПОДХОД

  • Вам нужны качественные услуги, для получения согласования со 100% гарантией?
  • Требуется выполнить пояснительные записки и чертежи не только для проверок, но и для использования на объекте?
  • Необходимо сориентироваться по стоимости разработки строительной документации?

Ответьте на несколько вопросов по вашему проекту и получите коммерческое предложение, оптимизированное под ваш случай!

Также наша компания занимается созданием технологических карт (ТК) на погрузо-разгрузочные работы