Какие еще нюансы стоит учитывать?
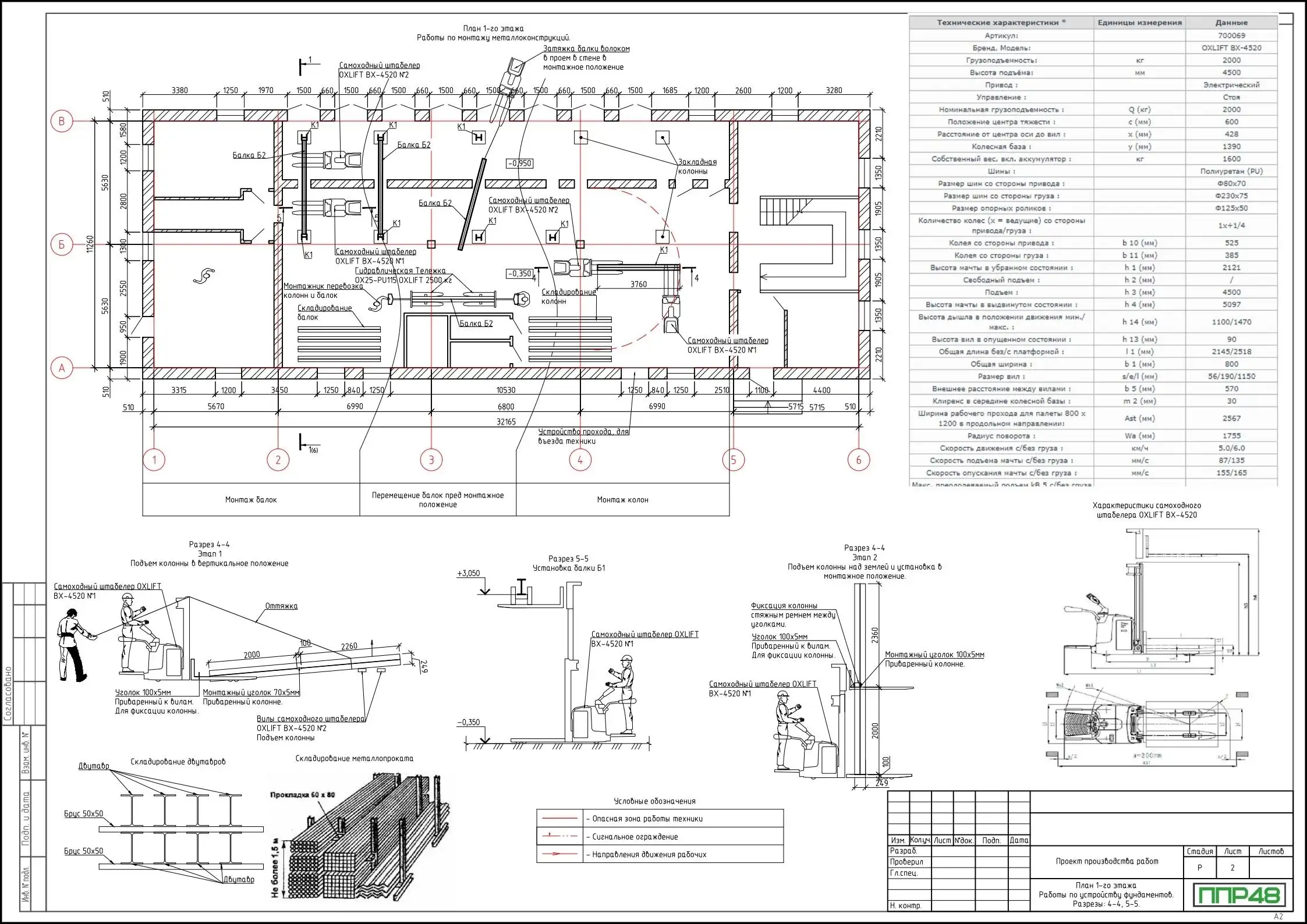
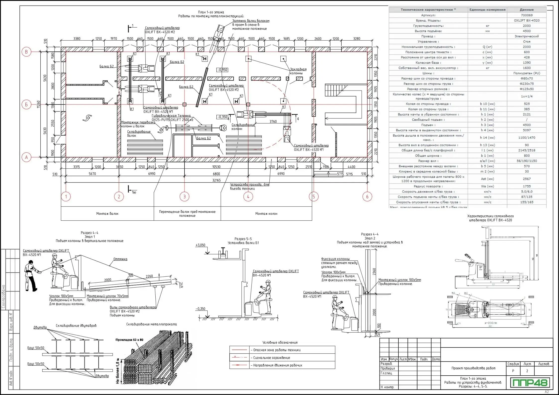
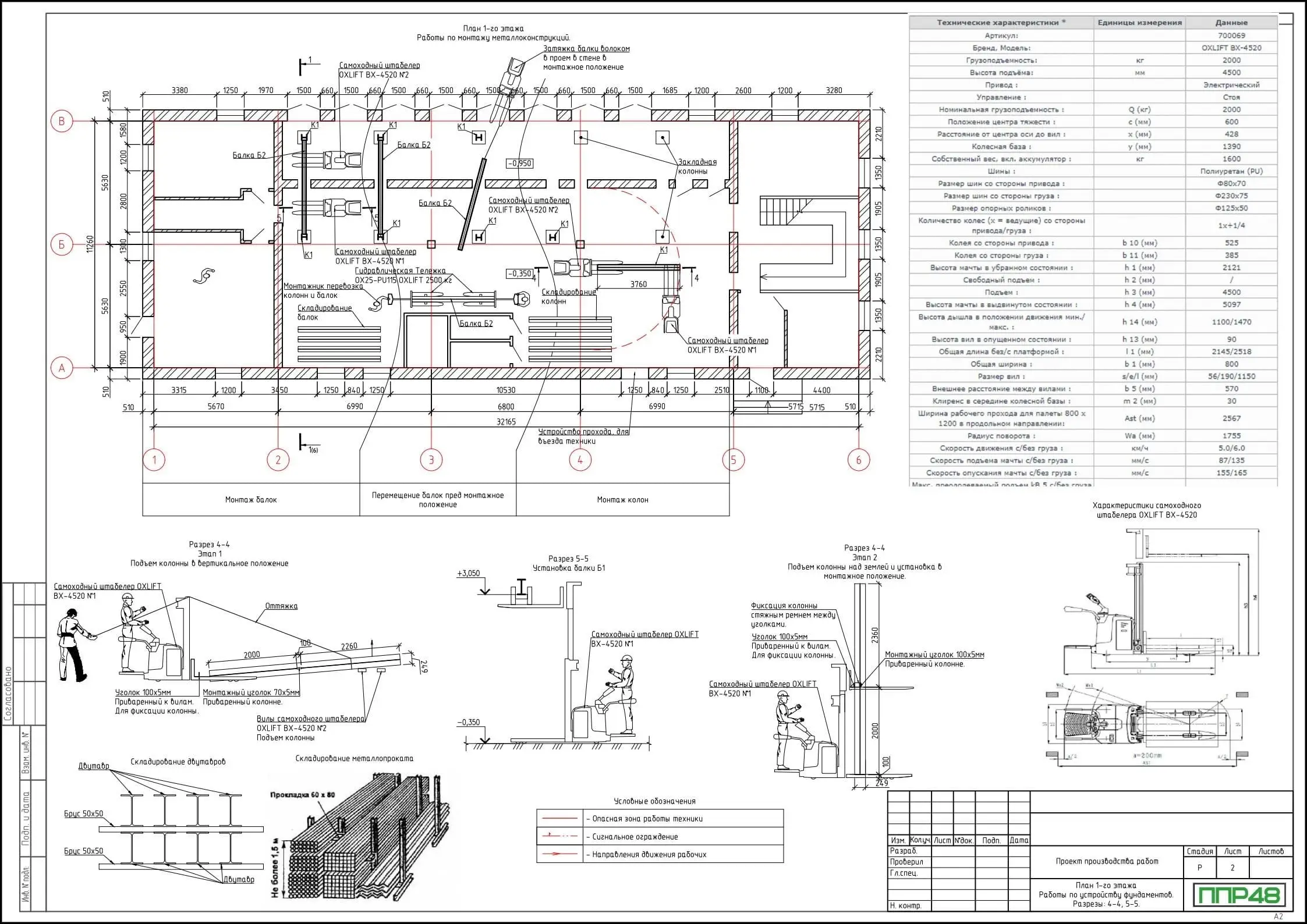
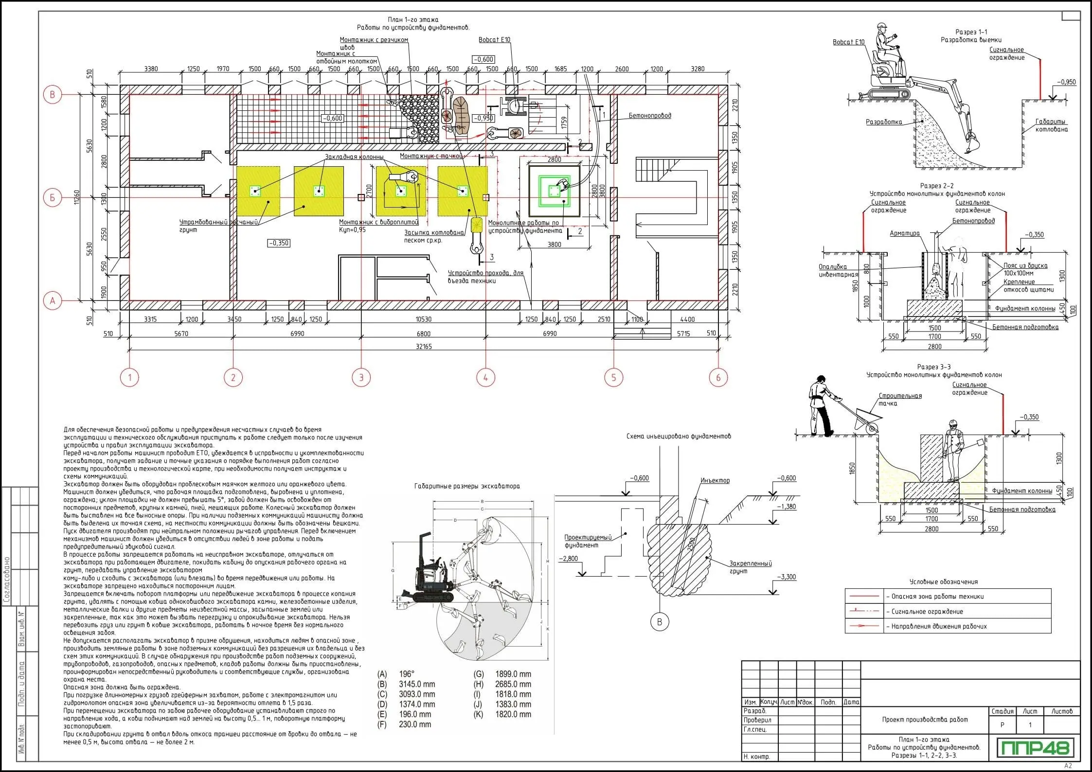
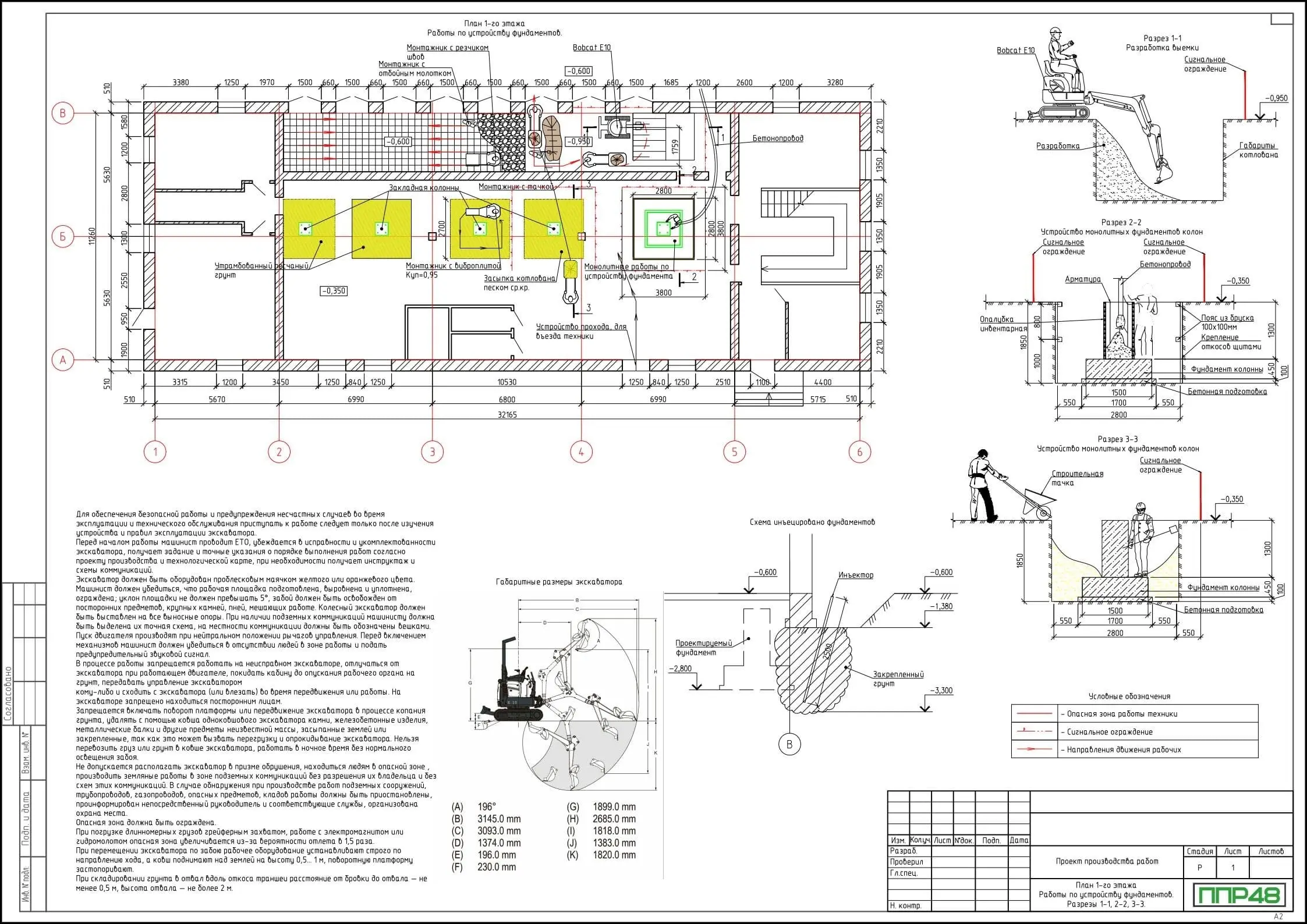
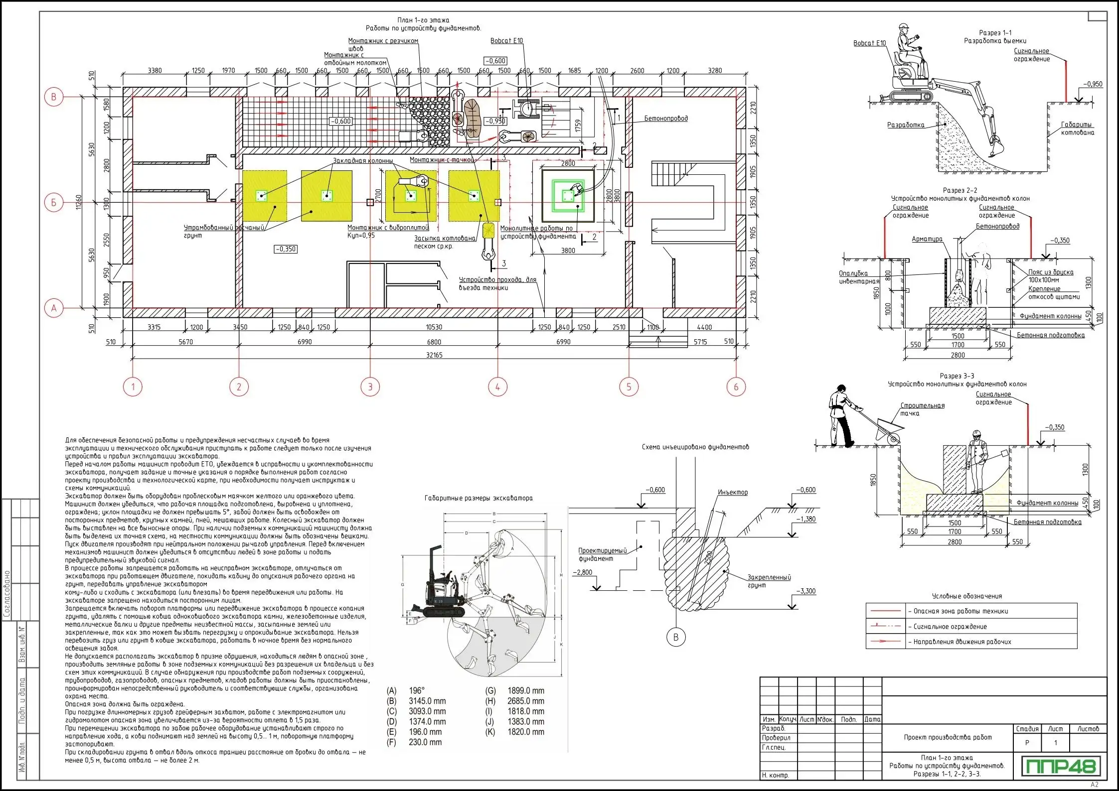
Разработка проекта производства работ (ППР) является ключевым этапом любого проекта реконструкции. ППР обеспечивает четкую организацию и контроль всех видов работ: монтаж металлоконструкций, электромонтаж, демонтаж, отделка внутри помещений, монолитные работы и другие виды строительных операций. В рамках плана проекта важную роль играет исходный проект организации строительства, который формирует последовательность и сроки выполнения СМР, а также распределение ответственности между участниками проекта.
Подготовительный период включает сбор и анализ проектной документации, изготовление схемы работ на высоте, составление расписания установки оборудования и подходов к зданию. Стоит уделить внимание охране труда и безопасности. В плане ППР также предусматриваются меры по охране окружающей среды и соблюдению требований к технической стороне проекта.
Проектирование документации проходит параллельно с выбором материалов и оборудования. В разделе инженерные сети и земляные работы прописываются мероприятия по устройству и прокладке коммуникаций, систем водоснабжения и прочих сетей. Создание проекта включает детальное описание способа монтажа кровли, бетонных работ и железобетонных элементов, взаимосвязь которых обеспечивает прочность и долговечность реконструируемого объекта.
Особое внимание уделяется монтажу металлоконструкций и фасадным мероприятиям. В документации прописываются схемы крепления, а также порядок проведения работ на стенах, окнах и фасадах. При реконструкции зданий часто возникают задачи по сносу отдельных элементов и повторной застройке, которые требуют четко выверенного плана и расчета стоимости выполнения СМР. В ППРк и ППР должны включать условия по доступу на высоту, требования по безопасности на каждом этапе.
Планирование включает определение путей движения кранов и техники, выбор подходящих лесов, а также учет зон осуществления СМР, лимитов доступа и ограничения по территориям. Разделы о дорогах, благоустройстве, схемах и адресах объектов помогают синхронизировать поставки материалов и логистику монтажа. В рамках проекта часто формируются секции по поставке материалов и оборудования, а также по заказу необходимых позиций для монтажа различных систем.
Важно также учесть этапы по сносу и очистки площадки, где требуется детальный план по вывозу отходов, утилизации и переработке материалов. В проектной документации особое место занимают разделы по схемам инженерных сетей, по планам установки оборудования и по графикам поставок. В сумме, ППР и план проекта организации строительства создают единую карту действий: от подготовки до завершающего этапа благоустройства и отделки, обеспечивая последовательность СМР и контроль качества на каждом участке.