ППР48 - изготовление и выпуск организационно-технологической документации в строительстве
Разработка технологических карт производства работ в Казани
Оптимизируйте свои работы, заказав 100% качественную ТК
Порядок разработки технологических карт безопасного производства работ
Опытные проектировщики ППР48 разрабатывают технологические карты производства работ для заказчиков в Казани быстро и качественно. Порядок изготовления ТК максимально удобен и прозрачен.
Обращение
в компанию
в компанию
Позвоните нам, либо оставьте заявку, заполнив форму обратной связи и закажите разработку ППР
Изучение
исходных данных
исходных данных
Отправьте необходимые для составления ППР или ТК исходные данные.
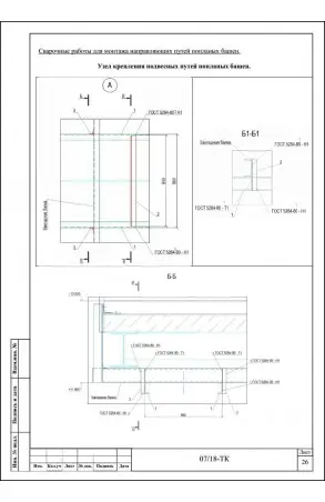
Смотреть документы
Заключение
договора
договора
Заключите с нами договор с НДС на составление ППР или составление технологических карт.
Смотреть проект договора
Изготовление документации
Выпустим ТК в установленный срок. Предоставим документ на согласование заказчику.
Скачать состав ТК
Взаимные
расчеты
расчеты
Бесплатно устраним замечания. Распечатаем, отправим проект и бухгалтерские сверки с курьером, либо почтой.
Завершение сотрудничества
Все довольны :)




































