ППР48
 

Мы разрабатываем ППР в промышленной отрасли

 
От 3х дней. От 35 тысяч рублей. Бесплатное устранение замечаний. 100% гарантия согласования.

Купить экземпляр готового ППР в промышленности можно в режиме "ОНЛАЙН" по ссылке
проект производства работ (ППР) на промышленное строительство

Виды ППР в промышленной отрасли

Основными видами проектов производства работ в промышленной сфере являются:

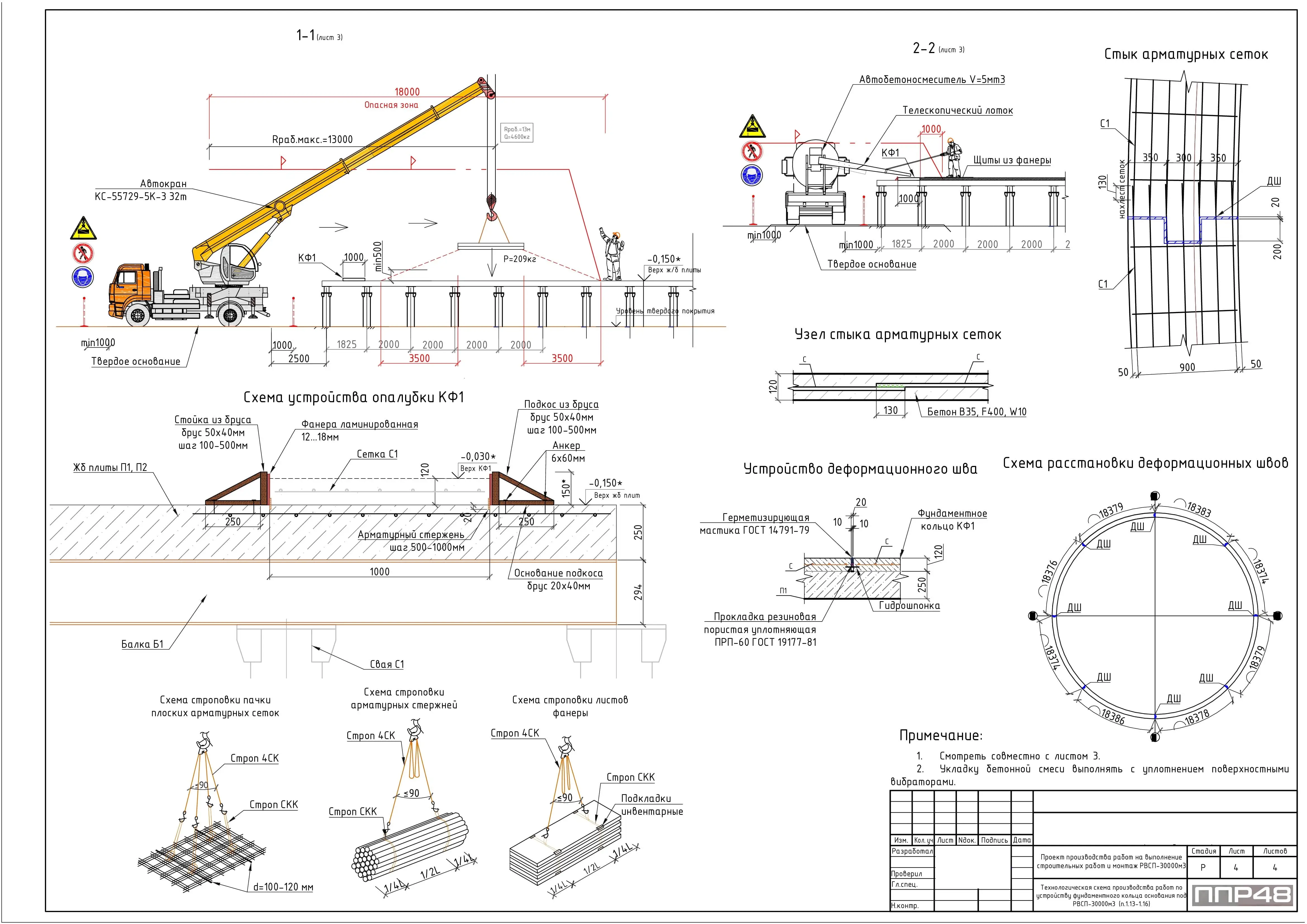
Данную группу проектов объединяет такие факторы, как высокая сложность производства работ, использование тяжелой строительной техники, наличие факторов риска причинения вреда здоровью сотрудников, занятых выполнением СМР.

Сколько стоит разработка ППР на промышленное строительство?

Ремонт

Формат PDF
От 34.000р.
Документ разрабатывается для раскрытия технологии ремонта дымовых труб, резервуаров, силосов, водонапорных башен, градирни.

Строительство

Формат PDF
От 51.000р.
Документ разрабатывается для описания технологии при возведении новых дымовых труб, резервуаров, силосов, водонапорных башен, градирен.

Наши проекты

Отзывы наших клиентов

ПОЛУЧИТЕ
КОММЕРЧЕСКОЕ
ПРЕДЛОЖЕНИЕ

ГАРАНТИРУЕМ
100% СОГЛАСОВАНИЕ

СРОК ИЗГОТОВЛЕНИЯ
ОТ 2-х ДНЕЙ

ПРЕДЛАГАЕМ
ИНДИВИДУАЛЬНЫЙ ПОДХОД

  • Вам нужны качественные услуги, для получения согласования со 100% гарантией?
  • Требуется выполнить пояснительные записки и чертежи не только для проверок, но и для использования на объекте?
  • Необходимо сориентироваться по стоимости разработки строительной документации?

Ответьте на несколько вопросов по вашему проекту и получите коммерческое предложение, оптимизированное под ваш случай!

Также наша компания занимается созданием технологических карт (ТК) на погрузо-разгрузочные работы