Компания ППР48 выполнила ТК на погрузочно-разгрузочные работы.
Команда ППР48 разработала серию ТК на погрузочно-разгрузочные работы.
Ниже приведены примеры разработанных нами технологических карт:
- Схема перемещения бухты каркаса транспортной ленты на стойку раскатки
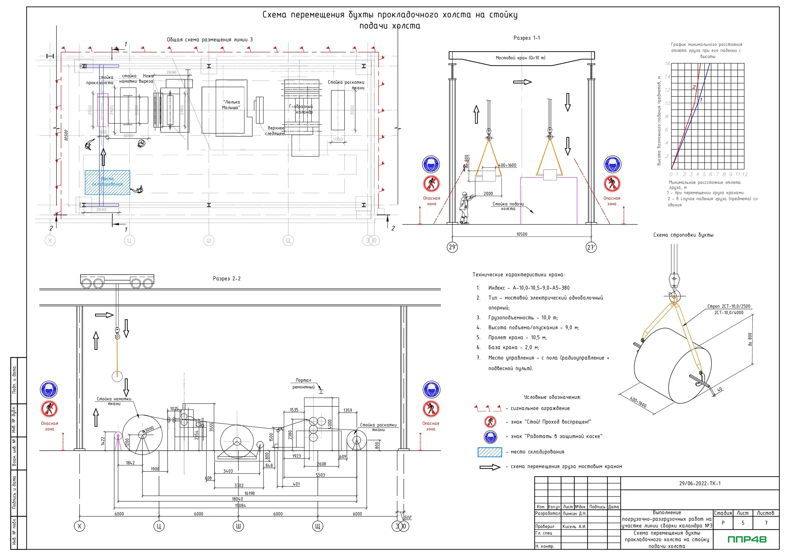
- Схема перемещения бухты прокладочного холста на стойку отбора холста в "Люльке малыша"
- Схема перемещения бухты с тканью на стойку раскатки
- Схема перемещения бухты каркаса транспортной ленты в "Люльку малыша"
- Схема перемещения бухты каркаса транспортной ленты на стойку намотки ткани
- Схема перемещения бухты каркаса транспортной ленты на стойку раскатки
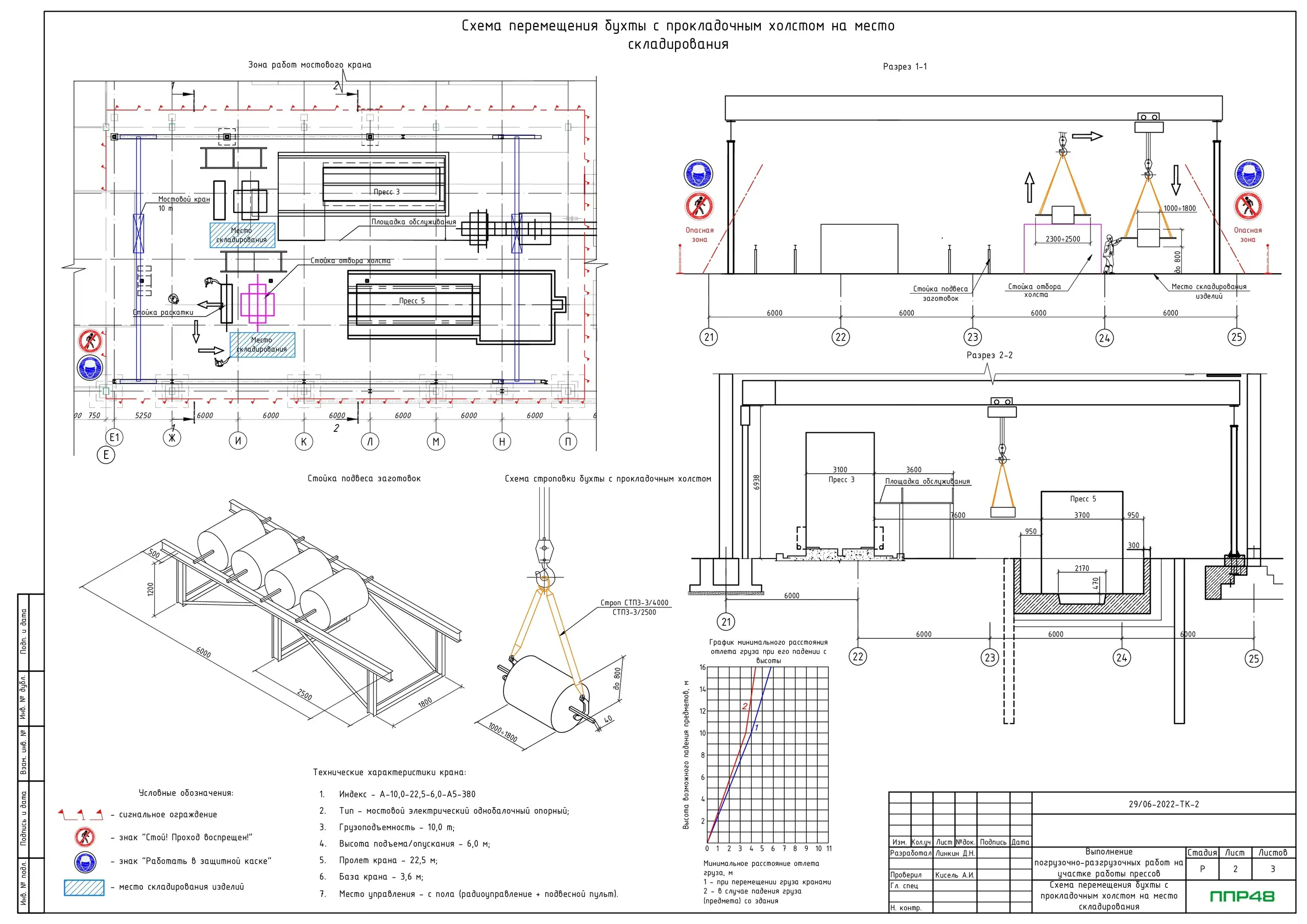
- Схема перемещения бухты с прокладочным холстом на место складирования
- Схемы строповки металлических изделий
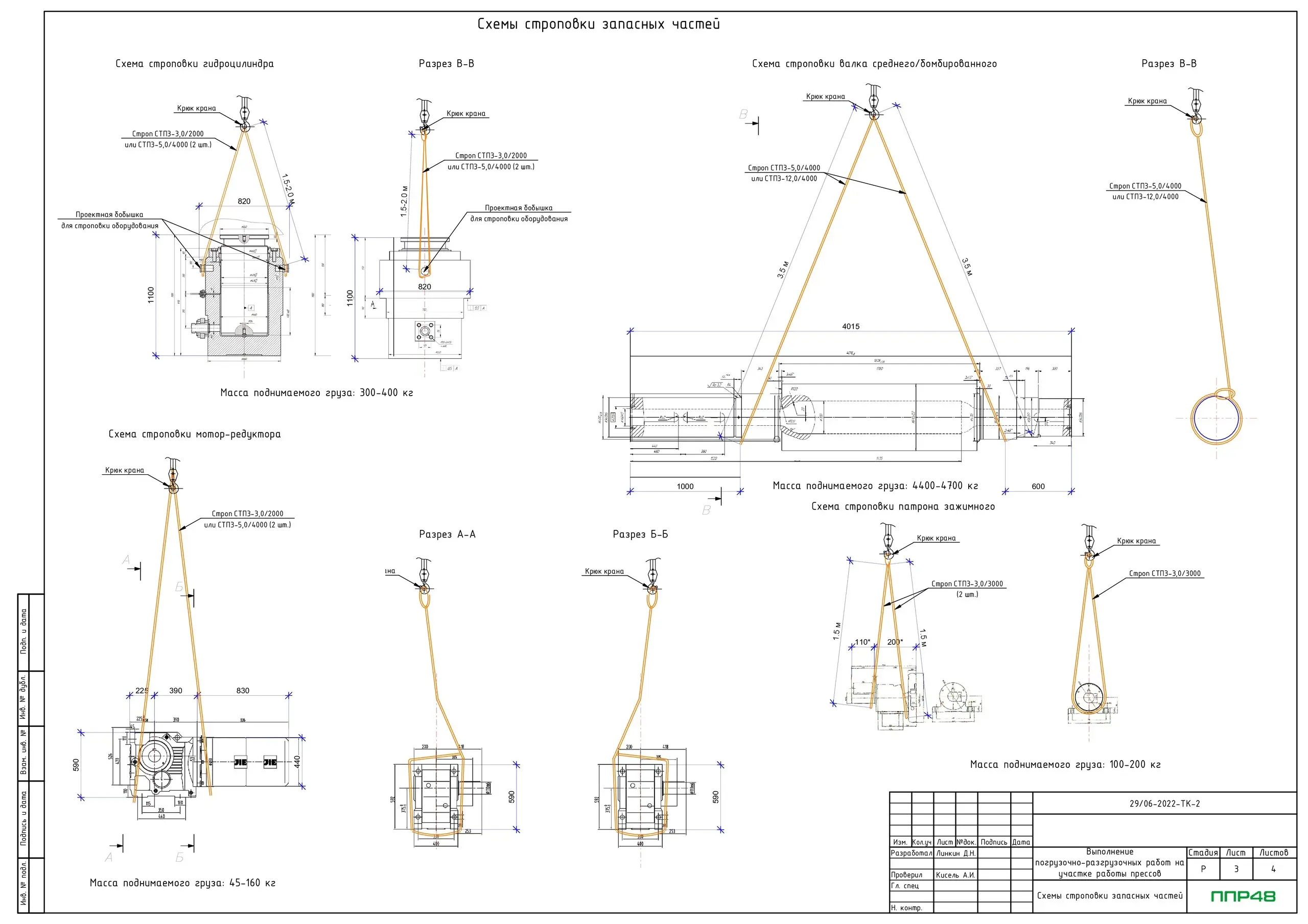
- Схемы строповки запасных частей

































